
Appartamenti

Tema: Residenziale
Anno: 2019
Luogo: Treviso (Motta di Livenza)
Dimensione lotto: 377 m²
Superficie edificio: 1 420 m²
Committente: privato
Progettazione: Barman architects con Filippo Andrighetto
Team di progetto: Roberta Bartolone, Giulio Mangano, Filippo Andrighetto
3D & render: Claudio Canesso
Collaboratore: Leonardo Giacalone
Stato: Progetto completato
IL NOSTRO OBIETTIVO
Su richiesta del committente, il progetto prevede la demolizione di un edificio del XX secolo e la costruzione di un nuovo blocco residenziale, aumentando sia il numero sia la qualità architettonica delle unità abitative.
IL CONTESTO
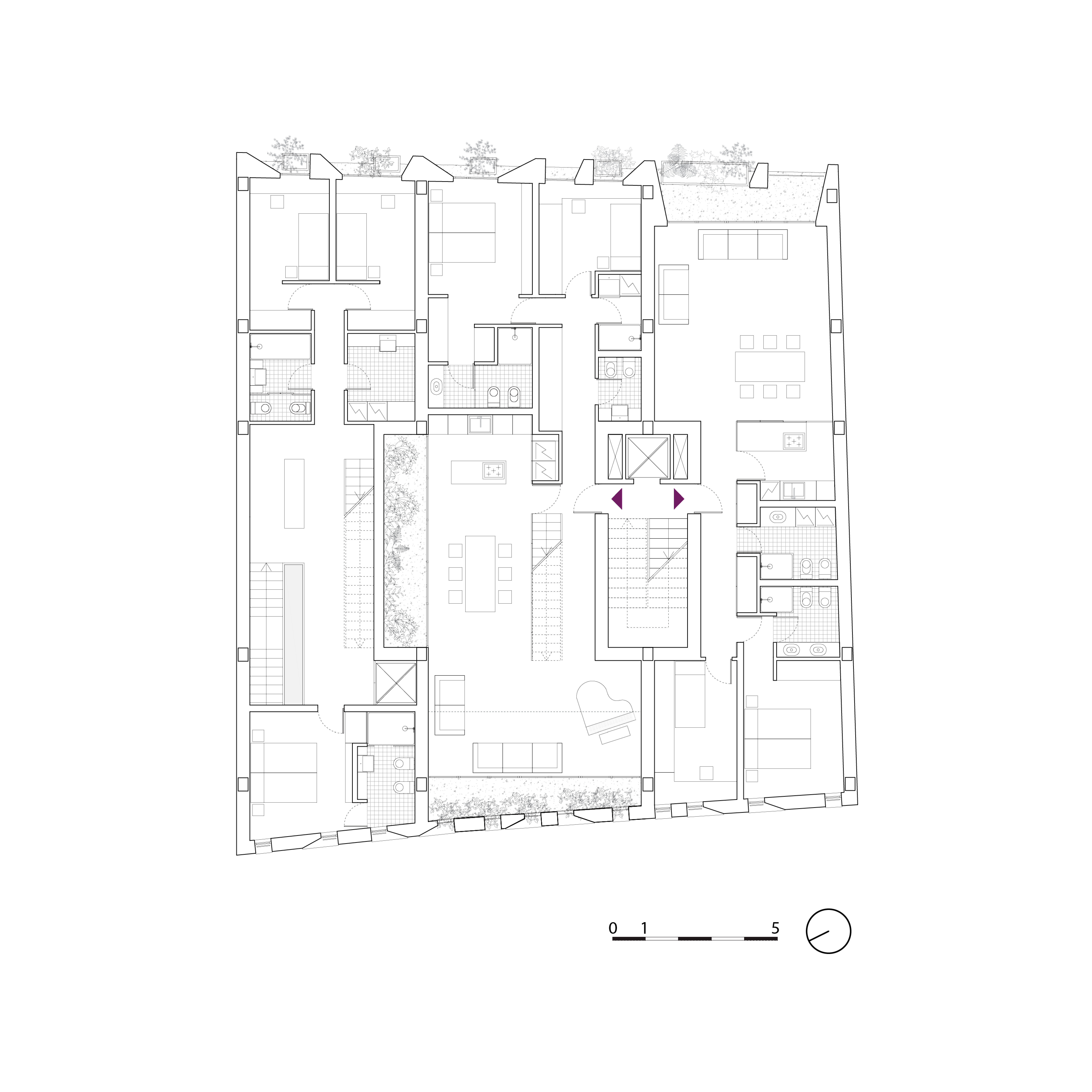
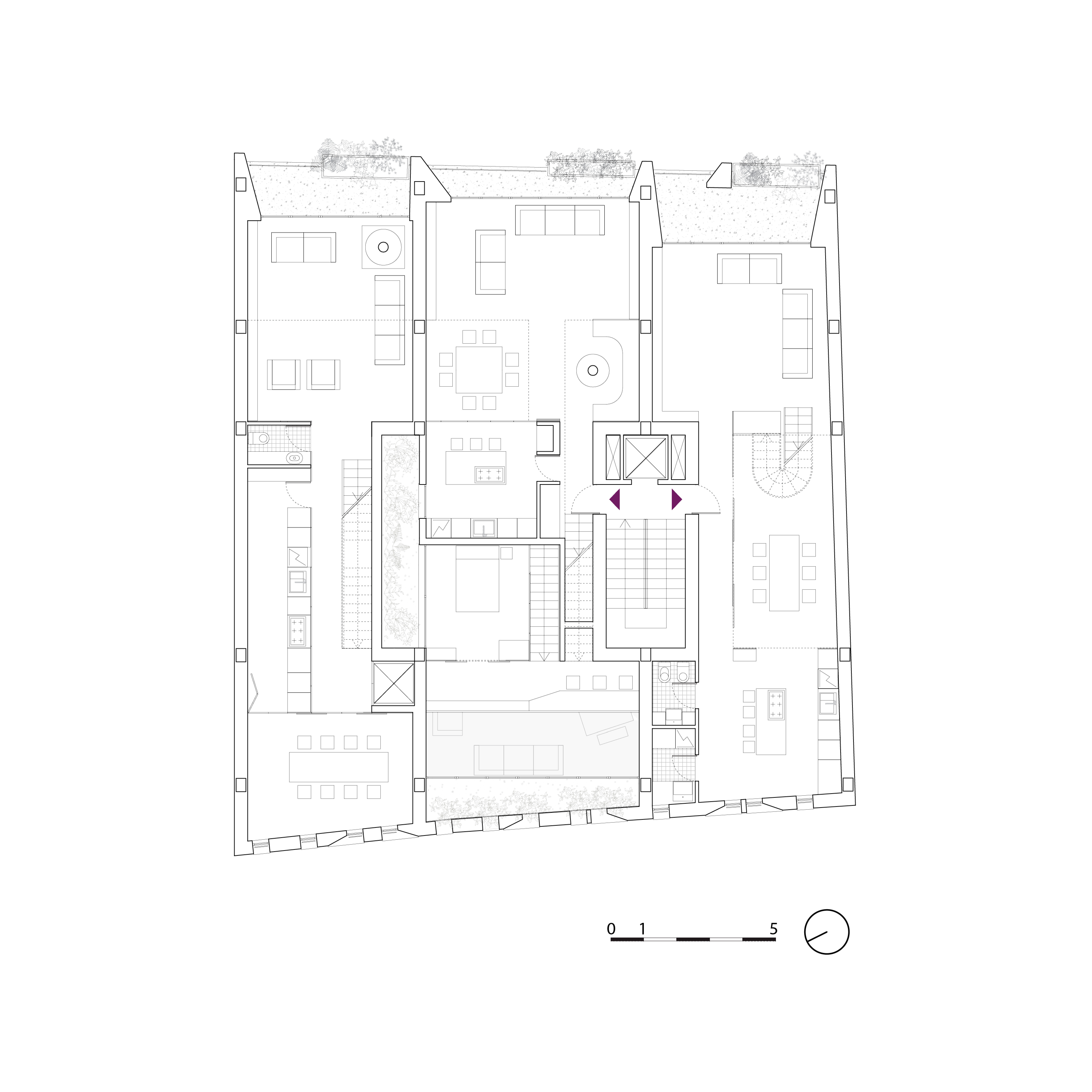
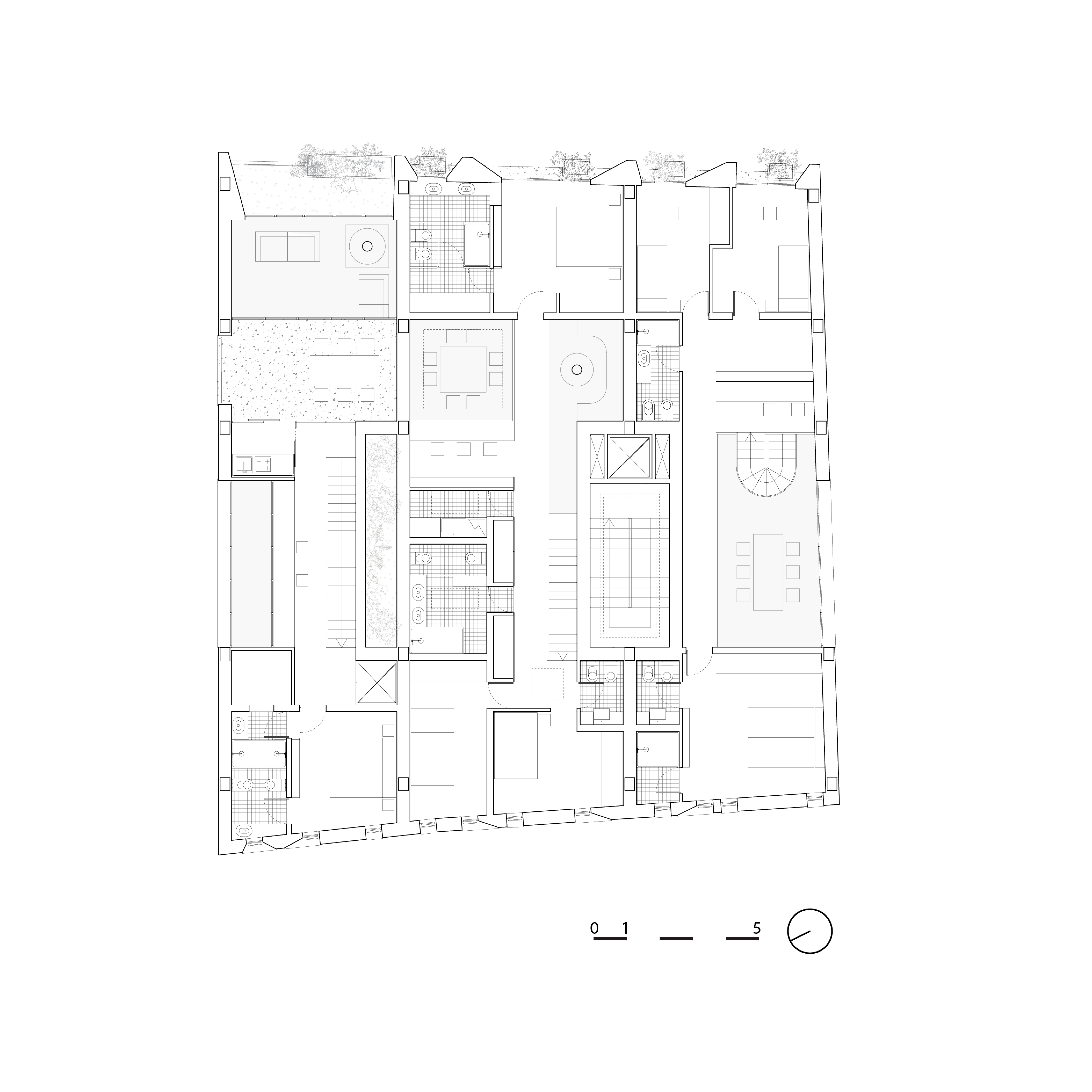
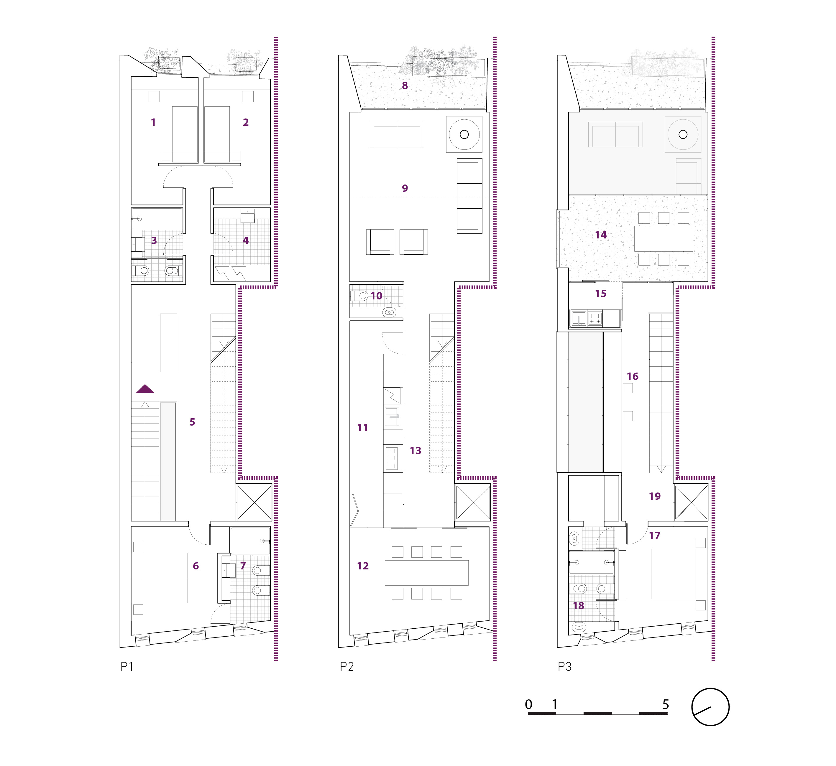
Il lotto, situato nel centro di Motta di Livenza, presenta una larghezza ridotta e una profondità di circa 20 m fra due edifici confinanti.
Questo vincolo diventa opportunità per sperimentare tipologie di alloggi diversificate, con spazi articolati e dimensioni adatte a differenti acquirenti all’interno dello stesso fabbricato.
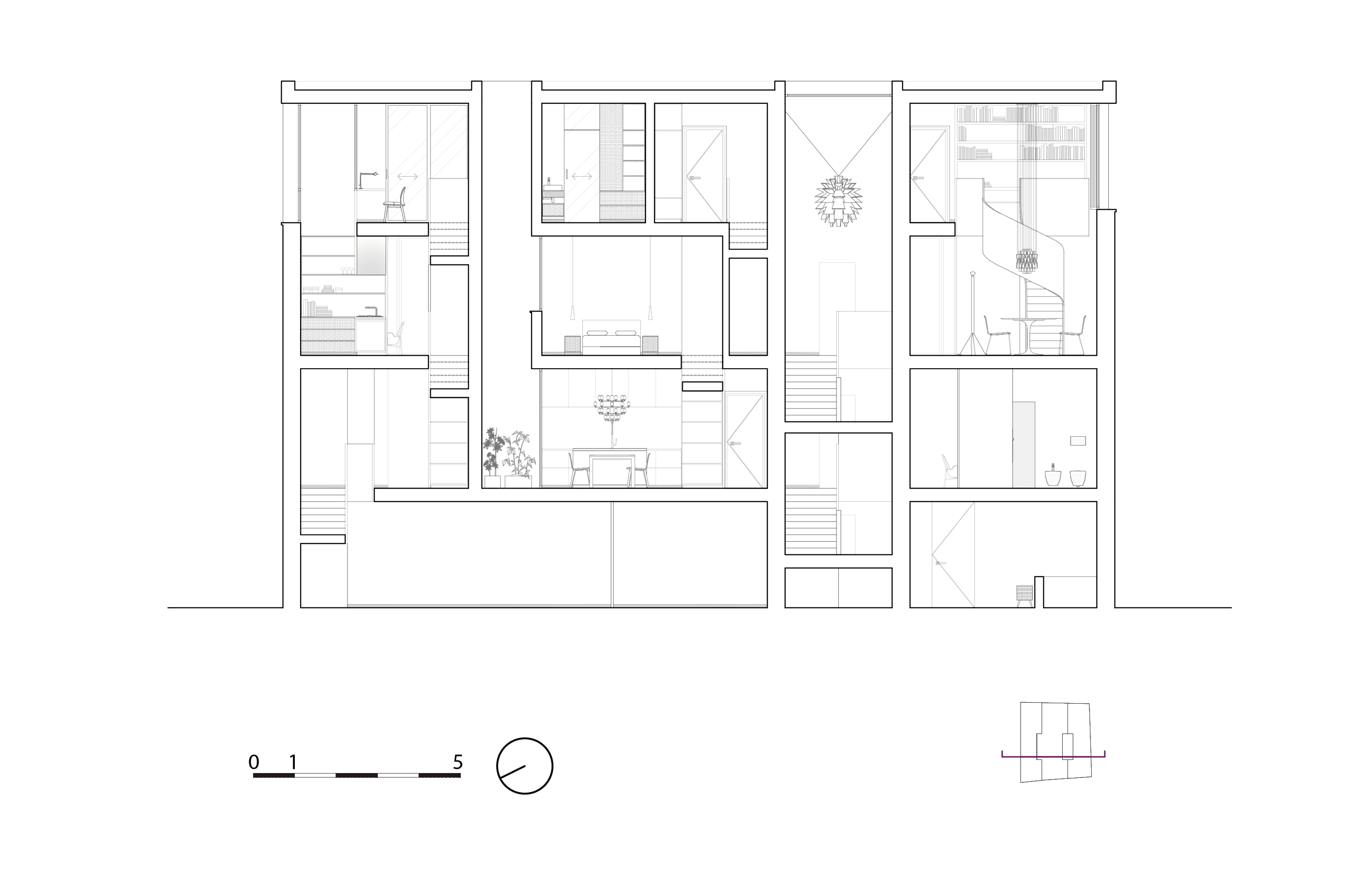
IL PROGETTO
Gli appartamenti sono disposti in senso trasversale rispetto al fronte strada, ottenendo per ciascuna unità una doppia esposizione.
Questo assetto consente di inserire logge verdi sulle facciate, favorendo ventilazione naturale e rapporto diretto con l’esterno.
Tutte le unità condividono living ampi e fluidi, spesso caratterizzati da doppi volumi.
Poiché gli appartamenti sono destinati alla vendita a un utente finale non ancora identificato, si è garantito un alto grado di personalizzazione interna.
La maglia di pilastri è inglobata entro i muri di perimetro, eliminando elementi strutturali dagli spazi di pregio e liberando la pianta.
Il fabbricato ospita:
• un appartamento su un solo livello;
• tre duplex collegati alla scala condominiale;
• un triplex che occupa un’intera fascia verticale con accesso indipendente.
Tutte le unità dispongono di posto auto e cantina al piano terra.
FACCIATE
Rivestite in pietra naturale locale, mostrano aperture più ampie verso il lato carrabile e più controllate su via Argine Destro (accesso pedonale). La configurazione massimizza luce naturale e ventilazione.






















