
GOLD ENTRANCE

Tema del progetto: Residenziale | Restauro
Anno: 2020
Luogo: Venezia, Castello
Committente: privato
Superficie: 38 m²
Progettazione: Barman architects
Team di progetto: Roberta Bartolone, Giulio Mangano
Impresa generale: IBR Costruzioni
Impianti MEP: CIEM Linea Luce S.N.C., Tecnologica S.A.S.
Illuminazione: Linea Light Group, Stilnovo
Arredi: ARREDAMENTI S31
Stato: Realizzato
Fotografo: Fabio Purgino
IL NOSTRO OBIETTIVO
Il progetto rinnova un appartamento con una sola camera da letto per offrire a un medico una casa compatta ma confortevole, restituendo vitalità agli interni veneziani.
IL CONTESTO
Collocato in un edificio tradizionale del XIX secolo, a pochi passi dal ponte di Rialto, l’intervento ha interessato l’interno dell’abitazione.
IL PROGETTO
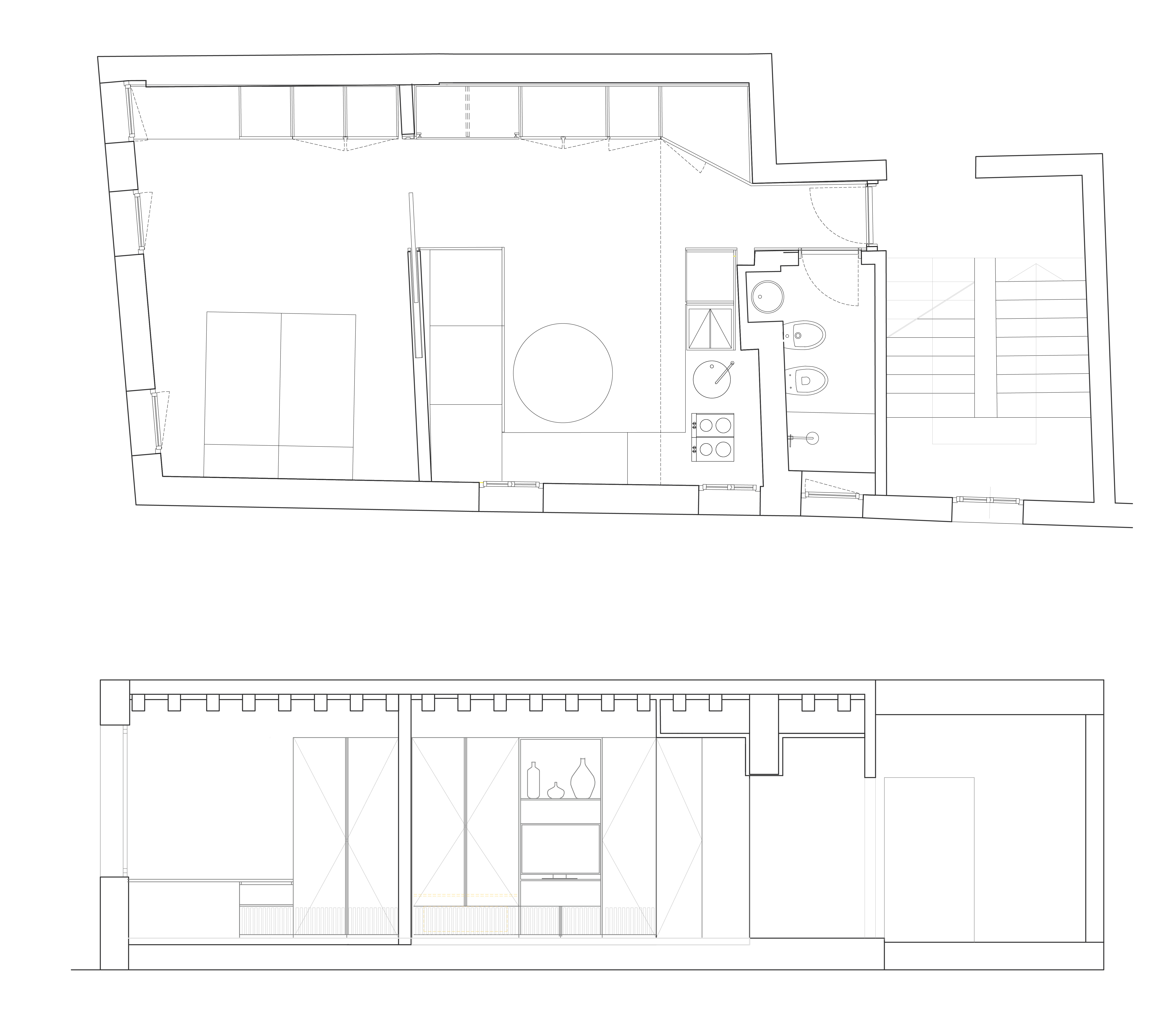
L’interior design mira a ottimizzare la distribuzione degli spazi nella ridotta superficie dell’appartamento.
Materiali e geometrie dell’ingresso
Il cuore del progetto è l’ingresso: pannelli laminati color oro chiaro rivestono soffitto e pareti, diventando l’elemento di forza dell’intero appartamento.
Illuminazione naturale in una calle stretta
Posto in una calle veneziana molto stretta, l’appartamento necessita di massimizzare la luce naturale. Per compensare questa limitazione, si privilegiano materiali riflettenti che amplificano l’illuminazione artificiale.
Espansione visiva degli spazi
I soffitti sono stati demoliti per mettere a vista le travi lignee originali, mentre l’apertura fra zona giorno e zona notte è stata ampliata, così da dilatare percettivamente gli ambienti.
In sintesi, l’intervento restituisce nuova vita a un piccolo appartamento veneziano, coniugando comfort, eleganza e rispetto del contesto storico.








