
APPARTAMENTO PRIVATO

Tema: Residenziale
Anno: 2024
Luogo: Venezia, Sant’Elena
Committente: privato
Impresa generale: Marino Pinato
Porta metallica: Arredamenti S31
Finiture pastellone: Vianello srl
Restauro pavimentazione: Giuseppe Tonini, Elisabetta Longega
Impianti MEP: M&P Impianti snc
Arredi: Plinio il Giovane, GPS Inox
lluminazione: Artemide, Stilnovo
Riscaldamento: Hotwave
Collaboratori: Enrico Rocelli, Giovanni Segatto
Stato: Realizzato
IL NOSTRO COMPITO
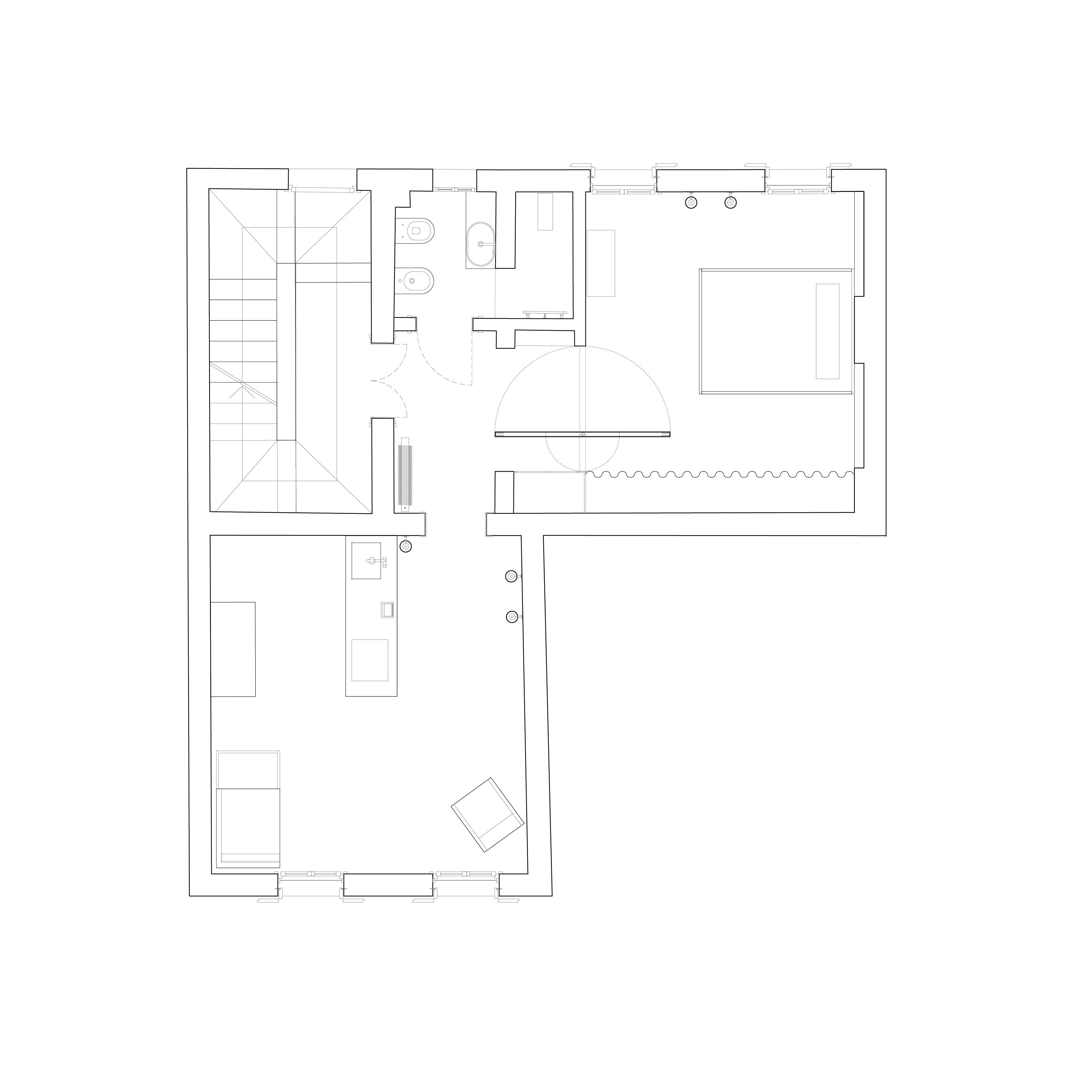
Restauro e interior design di un piccolo appartamento privato.
IL CONTESTO
L’unità si trova al secondo piano di un edificio del XX secolo, nel quartiere di Sant’Elena, a Venezia.
IL PROGETTO
L’obiettivo principale è creare uno spazio funzionale che soddisfi le esigenze del proprietario e, al contempo, risulti visivamente gradevole, rispecchiando stile e preferenze personali.
Colore e dettagli
L’uso del colore e di elementi caratterizzanti, come la porta metallica, permette di generare un ambiente vivace e armonioso.
“Ingresso verde”
L’ingresso, enfatizzato dalla porta a specchio, moltiplica le percezioni e aumenta la complessità spaziale. L’interior design mira a evocare emozioni, equilibrio e armonia visiva.
Valorizzazione del preesistente
Nel processo progettuale si è scelto di conservare e restaurare la pavimentazione novecentesca, valorizzando la storia del patrimonio edilizio di questo quartiere veneziano.










