
RISTRUTTURAZIONE DI APPARTAMENTO A VENEZIA

Tema: Residenziale | Restauro
Anno: 2020
Luogo: Venezia, San Polo
Committente: privato
Superficie: 70 m²
Progettazione: Barman architects
Team di progetto: Roberta Bartolone, Giulio Mangano
Collaboratori: Carlo Baldin, Ana Laura Solano Rodriguez
Stato: Progetto completato
IL NOSTRO OBIETTIVO
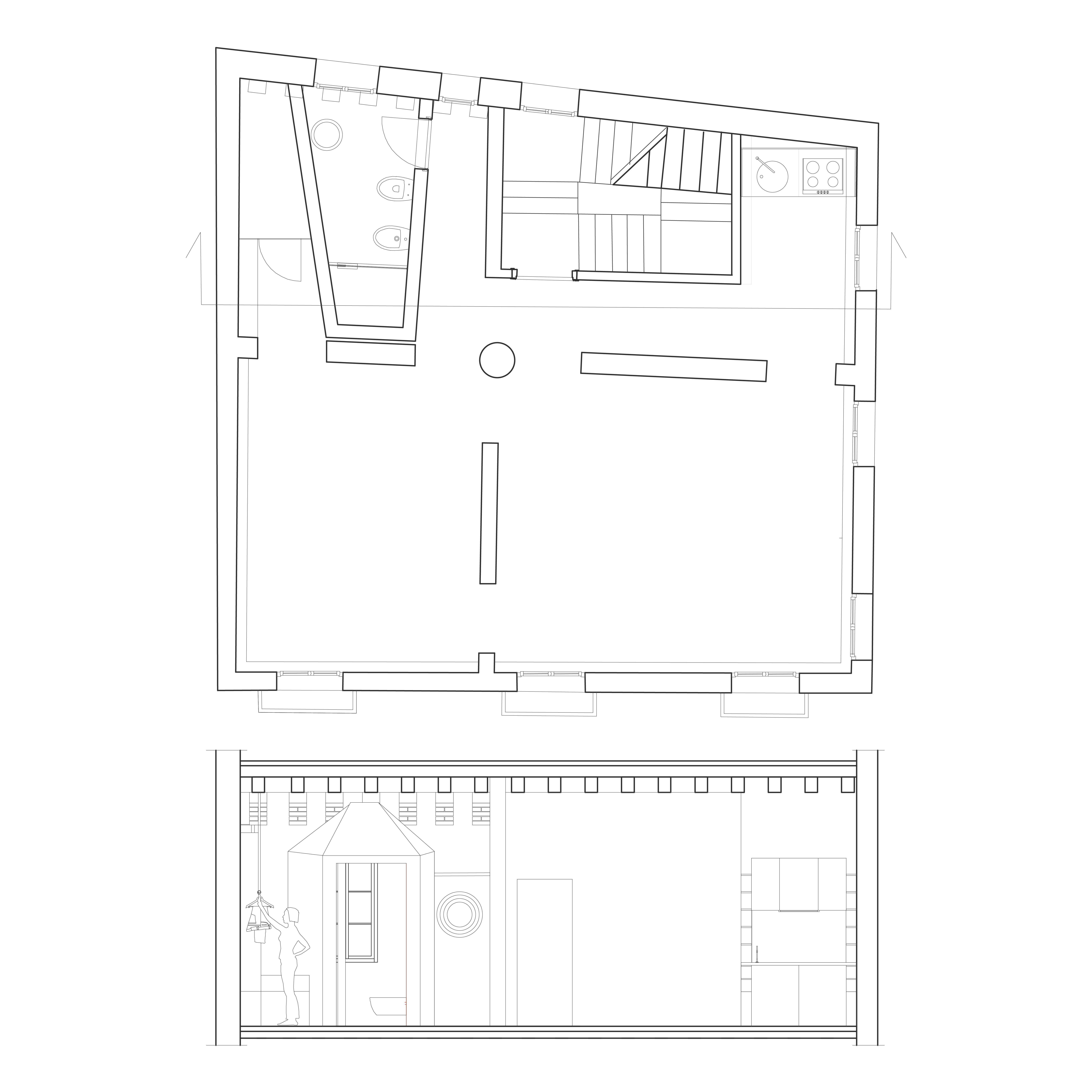
La richiesta del committente era di migliorare funzionalità e fruibilità degli spazi domestici mediante la realizzazione di un nuovo locale di servizio.
La costruzione di un bagno ha offerto l’opportunità di innestare un nuovo volume, isolato e facilmente riconoscibile rispetto al contesto in cui si inserisce.
IL CONTESTO
Il nuovo bagno si distingue per forma e materiali, diventando l’elemento visivo principale dello spazio e instaurando un dialogo con i "barbacani", i muri, gli architravi in pietra, le superfici in marmorino e le travi in ferro, elementi preesistenti dell’appartamento.
IL PROGETTO
Il volume del bagno, evidenziato dal contrasto materico e formale, interagisce con i caratteri originari dell’abitazione — barbacani, murature, architravi lapidei, finiture in marmorino e travi metalliche — valorizzando la stratificazione storica e conferendo una nuova identità agli spazi.
VOLUME
All the new architectural elements are designed to generate meaningful relationships between the sight of what exists and what is added.
The external cladding of the new bathroom, in brass-colored metallic laminate, reflects the natural and artificial light of the room.

ARREDI
All the new architectural elements are designed to generate meaningful relationships between the sight of what exists and what is added.
The external cladding of the new bathroom, in brass-colored metallic laminate, reflects the natural and artificial light of the room.

FURNITURE
La cabina armadio a giorno adiacente al nuovo volume è realizzata in legno con inserti in ottone ed è articolata in modo da sfruttare appieno le generose altezze interne dell’ambiente. Il disegno sartoriale riservato a un’area di servizio come il bagno dimostra che l’intervento sull’antico può — e dovrebbe — essere approfondito anche in occasione di minimi adeguamenti funzionali, trasformandosi in un’occasione progettuale.





