Skip to main content

Progetti

DESIGN COMPETITION “INNOVATION SQUARE CENTER”

DESIGN COMPETITION “INNOVATION SQUARE CENTER”

Residential

DESIGN COMPETITION “INNOVATION SQUARE CENTER”

Theme of the project: Office and Headquarters | International Competition

Project year: 2018

Competition Organizers: Sigit Oman Automotive Group LLC

Location: Turin, Corso Orbassano 402/15

Building Owner: Aster Suisse SA

Site Dimension: 2900 Sqm

Building Dimension: 3200 Sqm

Design: Barman architects

Project Team: Roberta Bartolone, Giulio Mangano

3D models, renders: Claudio Canesso

Consultants: Sam Weston

Collaborators: Carlo Corona, Tida Demba, Leonardo Giacalone

OUR TASK

In 2018, Barman architects participated in the "Innovation Square Center" competition, which Sigit Oman Automotive Group promoted.

The competition's purpose is to refurbish the former Industrie Grafiche Mario Gros headquarters in Turin.

Our project proposal aims to:

  • preserve the modern building in terms of respecting and valorizing the existing spatiality and material structure;
  • maintain and improve the readability of the preserved spaces, avoiding unnecessary and, above all, opaque façade fragmentation;
  • add the functions the client requires according to a rational spatial organization that respects the local and national building regulations.
Masterplan innovation square center

Masterplan of the project area.

THE CONTEXT

The building, abandoned for about a decade, was designed by the architect Gualtiero Casalegno for Mario Gros, a well-known lithographer in Turin. Casalegno designed a reinforced concrete structure with a large glass facade and a full-height internal square. The company moved into the new building in the early 1960s and included the young Armando Testa among its collaborators. The business, under different ownership, ceased about 15 years ago. The new owner, Sigit Oman Automotive LLC, launched 2018 the architectural idea competition for refurbishing the former industrial building.

View of the new building entrance.

THE TOPIC

The competition deal with two main topics.

The progressive disposal of the industrial buildings

The progressive process of globalization that cyclically overwhelms different parts of the world and that in recent decades has affected Italy has often involved the transformation, and sometimes the desertification, of the industrial and manufacturing landscape.

The task of transforming this point of apparent weakness into a strength one is given back to the wisdom and vision of the actors involved in this process.

The headquarters of the former Industrie Grafiche Mario Gros in Corso Orbassano, in Turin – Italy, represents in this sense an opportunity to shape a model of transformation keeping the essence of the place while transforming itself with a proactive attitude. The work of Gualtiero Casalegno in Mirafiori is a fine example of Turin modern architecture, whose undoubted historical value must be preserved and enhanced. The rebirth of this place is necessarily confronted with its history.

The design of a contemporary work enviroment

The design of a work environment has a decisive impact on the life quality of the people that occupy these spaces. For decades, the design of workplaces has been guided by functional logic exclusively, oriented towards maximizing the occupants per square meter ratio and not focusing on the quality of life of the occupants. Several studies carried out on the quality of the workspaces have shown that an “engaging environment” is to be considered, hierarchically more important than other factors traditionally considered as priorities, in the scale of user values.

The technological revolution that began over the last few decades has led to obvious changes in the way we approach work. The difference between time dedicated to work and to other daily activities is always less determined. It is for this reason that the workplaces are inevitably destined to become hybrid containers but strongly characterized, ready to put the focus no longer on the work to court but on the person.

The project sought to set the quality of the work environment as its objective, focusing on the aspects of social interaction among the occupants of the same building, favouring the comparison also among individuals belonging to different companies. The informal interior spaces and the occupation of solar paving with recreational activities represent the places and the way to stimulate social relations and promote spontaneous practices.

3d model innovation square center

THE PROJECT

Even if the object of the competition is a preliminary concept, the design choices have been evaluated from the point of view of technical performance and the practical feasibility of what was proposed in terms of economic sustainability and rationalization of the construction site.

Basement and Ground floor

Basement and Ground floor

Building interventions

With the awareness of the available budget limits and interpreting this constraint more as an opportunity than a limit, it was decided to make the intervention effective, enhancing the character of the existing building and inserting some new elements that allow solving the issues related to the required functions change.

New internal volumes

The rest distinguishes the two additions in the context of the historical building regarding shape and materiality. The new entrance allows for overcoming the height difference, eliminating architectural barriers for disabled people between the different floors and separating the flows inside the building. The second addition is a volume that dominates the internal square. The block collects meeting and leisure facilities shared by all the offices.

First and Second floor

First and Second floor

The transformation of the former rotary–press room

The central void is the distinctive element of the building. It was decided to enhance the spatial quality of this part of the building by preserving the void, freeing the north glazed façade from the floor slabs of the transverse wings to establish a relationship of visual continuity between the building’s interior and exterior. On the ground floor, the “innovation square,” directly accessible from the concierge block, presents a system of mobile partitions that define the flexible space for meeting rooms and lounge areas with sofas. From the square, you can access the cafeteria directly connected to the restaurant located in the basement through an internal staircase.

View of the rotary-press room

View of the rotary-press room

Office spaces

Inside the building, there are different types of workstations, which include open workstations, private offices, meeting spaces, common areas, areas for collective work, informal workspaces, workstations in the laboratory, co-working stations, lounge areas, refreshment areas, areas for sports and leisure.

Team working is encouraged by spaces designed for collective work. These areas are located inside the new central volume in the covered square. The collective workspaces are easily reconfigurable.

The spaces on the ground floor are also accessible and bookable by external users. A system of compacting furniture in the square allows a high level of flexibility in the meeting area without compromising the functionality of the central space.

Work spaces furnitures abacus

Work spaces furnitures abacus

Ventilation system abacus

Access to the site

Two driveways have been planned: the first one allows transit to the warehouse, and the second one, close to the roadside, hosts the entrance to the underground parking, which accommodates even the corporate electric cars. Entrances for the caretaker’s lodgings, the materials laboratory, and the restaurant are located northwest of the site. The restaurant can be accessed independently directly from the street.

This option can be advantageous from a management perspective aimed at maximizing the occupancy rate of the restaurant. It is possible to reckon on the restaurant opening even in the evening, addressing a user not necessarily linked to the workspaces on the upper floors.

  Site access scheme

Site access scheme

  Access control diagram

Access control diagram

Monitoring system

The plant design envisages systems for monitoring and optimizing air conditioning according to occupied areas. It is possible to provide a geolocation system to heat or cool the location chosen by the user only if space is occupied. The building will be equipped with digital sensors that will constantly monitor the following parameters:

  • The position of people in the building
  • The temperature of each functional area
  • The concentration of carbon dioxide

Thanks to a smartphone app, the building user, once registered, can act on the building control system (BMS) to regulate the heating, cooling, and lighting levels. Moreover, booking meeting rooms, co-working stations, catering or catering services, and interacting with colleagues will also be possible through the app.

  The monitoring system

The monitoring system

  Access control and data protection diagram

Access control and data protection diagram

  Supervision and reservation app system

Supervision and reservation app system

Detail of  the window, facade cladding and roofing

Detail of the window, facade cladding and roofing

  Detail of the facade cladding

Detail of the facade cladding

Exterior view of the building

Exterior view of the building

Read more …DESIGN COMPETITION “INNOVATION SQUARE CENTER”

  • Hits: 219

LOFT IN VENICE

LOFT IN VENICE

Residential

LOFT IN VENICE

Theme of the project: Residential

Project year: 2023

Client: Private

Location: Venice, Castello

Building dimension: 75 Sqm

Design: Barman architects

Collaborators: Enrico Rocelli, Giovanni Segatto

Furniture Contractor: Fantin Srl

Lighting Contractor: Stilnovo

Windows and doors Contractor: Secco Srl

Status: Built

OUR TASK

To give new life to a residential loft resulting from the transformation of a previous glass production workspace

THE CONTEXT

Set in Castello in Venice, close to Campo San Giovanni e Paolo, the objectives of the project

THE PROJECT

The objectives of design depending on this project, include the following:

- Functionality in order to have have adequate lighting, ventilation, acoustic control and thermal insulation to create a comfortable and healthy environment.

- Aesthetics. Materials and finishes contribute consciously and creatively to the conservation of the spirit of a place.

  • Loft a Venezia - Camera da letto con tappeto verde

    Loft Venice Bedroom Green Rug

  • Loft a Venezia - Zona pranzo con tavolo verde e sedie nere

    Loft Venice Dining Area

  • Loft a Venezia - Sala pranzo illuminata con luce naturale

    Loft Venice Dining Light

  • Loft a Venezia - Zona pranzo con tavolo verde e sedie nere

    Loft Venice Kitchen Corner

  • Loft a Venezia - Vista dalla zona living verso la corte

    Loft Venice Living Courtyard

  • Loft a Venezia - Vista soggiorno con divani bianchi

    Loft Venice Livingroom Sofa

Read more …LOFT IN VENICE

  • Hits: 191

INSTALLATION UPCYCLING

INSTALLATION UPCYCLING

Urban Design | Installation Upcycling

INSTALLATION UPCYCLING

Project Theme: Urban Design | Installation Upcycling

Project Year: 2018-2021

Location: Corbola, Italy

Building Dimension: 100 Sqm

Client: public

Design: Barman architects

Project Team: Roberta Bartolone, Giulio Mangano

Collaborators: Filippo Andrighetto, Carlo Baldin, Leonardo Giacalone, Tommaso Spagnolli, Tomas Ambra, Mattia Deon

Mepart Program: Heritage Asset Management SBRL, IUAV University Spin-Off

Photographer: Fabio Purgino


First Installation

Project Title: The Port and the Fall of Icarus for the “Work Body Leisure” Pavilion

Project Theme: Architecture Biennale 2018

Project Year: 2018

Location: Venice, Riva Sette Martiri - Venice

Client: public

Building Dimension: 100 Sqm

Design: Hamed Khosravi, Taneha Kuzniecow Bacchin, Filippo LaFleur + APML-Architetti Pedron / La Tegola

Photographer: Igreg Studio

Status: Built

OUR TASK

The project aims to extend the Icarus Pavilion life cycle after the end of the 16th International Architecture Exhibition, La Biennale di Venezia 2018.

The reuse project is a pilot experiment to evaluate the feasibility, duration, cost, and adverse events of a full-scale research project called MEPART.

Mepart deals with upcycling installation to reduce the waste of temporary exhibitions.

THE CONTEXT

The Port and the Fall of Icarus was a part of the extended program of the Dutch Pavilion, ‘Work, Body, Leisure,’ for the Venice Biennale 2018, curated by Marina Otero Verzier. The project comprised an installation inside the Dutch Pavilion and a public installation at Riva dei SetteMartiri in Venice. Hamed Khosravi, Taneha Kuzniecow Bacchin, and Filippo LaFleur designed the external pavilion in Riva Sette Martiri.

The installation, destined for landfill at the end of Biennale, was assembled in modular corten steel coated sandwich panels, and it was re-installed as a museum in the Municipality of Corbola.

The upcycling of the installation represents the pilot project of a more comprehensive program called MEPART, promoted by Heritage Asset Management S.B.R.L.

THE TOPIC

Every year in the world, there are several temporary exhibitions related to the fields of art and architecture. The case study of the Biennale of Venice shows us that these kinds of events create different polarities in the city, attracting people to new temporary structures, like installations or pavilions. Usually, the lifecycle of temporary structures goes from the preliminary idea to its demolition.

What is the problem?

Temporary exhibitions produce tons of construction and demolition waste per year.

The goal that MEPART wants to achieve is to reuse original installation materials and obtain manufacts of the same value or even more.

How?

Thinking about the project in terms of a reusable material catalog. Before the installation is built, professionals can produce a catalog and upload it to the MEPART website. By doing this, they enlarge the available material database. Extremely important is providing opportunities for users and making it easily accessible. The client exposes interests and needs to local designers; step by step, the structure is redefined to better respond to the environment. Thanks to an early communication of the available materials, the new site can be already chosen, and the structure can be redesigned in advance. By doing this, there’s no need to find a warehouse, and the transport involved in the storage process can be avoided. This process can be an opportunity to take advantage of these structures. So they could trigger social cohesion and new activities in the city. It is definitely a big step towards reducing excessive consumption and making a better future.

Upcycling process diagram

THE PROJECT

At the end of the Biennale, the panels were disassembled and cataloged. The project proposal provides to rebuild the installation with a new layout, according to the request of Corbola Municipality. The Port and the Fall of Icarushas has been re-functionalized as a small open-air museum close to the ancient Roman Via Popilia archaeological area.

  • Icarus Installation Gate View

  • Icarus installation side view

    Icarus Installation Side View

  • Icarus installation tree angle

    Icarus Installation Tree Angle

  • Installation on site

    Installation On Site

  • Materials transport boat

    Materials Transport Boat

  • Installation Upcycling Axonometry Barman Architects

  • Installation Upcycling Axonometry 1 Barman Architects

  • Installation Upcycling Axonometry 2 Barman Architects

  • Installation Upcycling Plan Barman Architects

Read more …INSTALLATION UPCYCLING

  • Hits: 190

PRIVATE APARTMENT

PRIVATE APARTMENT

Residential

PRIVATE APARTMENT

Project Theme: Residential

Project Year: 2024

Location: Venice, Sant’Elena

Client: Private

General Contractor: Marino Pinato

Metal door: Arredamenti S31

Pastellone finishing: Vianello srl

Paving restoration: Giuseppe Tonini, Elisabetta Longega

MEP Contractors: M&P Impianti snc

Furniture Contractor: Plinio il Giovane, GPS Inox

Lighting Contractor: Artemide, Stilnovo

Heaters Contractor: Hotwave

Collaborators: Enrico Rocelli, Giovanni Segatto

Status: Built

OUR TASK

The project is the restoration and interior design of a small private apartment.

THE CONTEXT

The apartment is located at the second floor of a twentieth century building building located in Sant’Elena, Venice.

THE PROJECT

The primary objective of interior design project is to create a space that is functional and meets the needs of the owner and, at the same time, to create a space that is visually appealing and reflects the personal style and preferences of the users.

In this case, the use of color and design elements, like the metal door, give us the opportunity to create a vibrant and harmonious environment.

The “green entrance”, enphazized by the mirroring door, play to multiply the sensations and increase the spatial complexity. The interior design aims to evoke emotions, and create a sense of balance and harmony, and be pleasing to the eye.

In the design process we decided to preserve and restore the twentieth century paving to valorized the the history of the built heritage of this neighborhood of Venice.

  • Ingresso cabina armadio laccato verde scuro

    Goldentrance Cabina Verde

    © Giuseppe Miotto / Marco Cappelletti Studio

  • Camera con letto singolo e armadi verdi lucidi a specchio

    Goldentrance Camera Specchio 1

    © Giuseppe Miotto / Marco Cappelletti Studio

  • Goldentrance Camera Specchio 2

    © Giuseppe Miotto / Marco Cappelletti Studio

  • Cucina con isola in metallo e pavimento esagonale

    Goldentrance Cucina Metallo

    © Giuseppe Miotto / Marco Cappelletti Studio

  • Tenda beige in camera da letto con trave a vista

    Goldentrance Dettaglio Tendaggio

    © Giuseppe Miotto / Marco Cappelletti Studio

  • Poltrona gialla su pavimento esagonale in cotto e cemento, finestra con vista

    Goldentrance Poltrona Gialla Esagoni

    © Fabio Purgino

  • Radiatori rossi vicino a finestra con vista su edificio in mattoni

    Goldentrance Radiatori Finestre Mattone

    © Fabio Purgino

  • Camera con letto singolo e armadi verdi lucidi a specchio

    Goldentrance Specchio Armadio

    © Giuseppe Miotto / Marco Cappelletti Studio

  • Radiatori rossi a colonna verticale in metallo a vista

    Goldentrance Termoconvettori Rossi

    © Fabio Purgino

  • Planimetria Sant Elena Barman Architects

  • Sezione Sant Elena Barman Architects

Read more …PRIVATE APARTMENT

  • Hits: 290

NEW FONDAZIONE Di VENEZIA headquarters

NEW FONDAZIONE DI VENEZIA HEADQUARTERS

Residential | Restoration

NEW FONDAZIONE DI VENEZIA HEADQUARTERS

Project Theme: Office and Headquarters | Restoration

Project Year: 2022

Location: Palazzo Flangini, Venice

Client: Fondazione di Venezia

Site Owner: Private

Building Dimension: 600 Sqm

Design: Barman architects

Project Team: Roberta Bartolone, Giulio Mangano

3d, renders: Claudio Canesso

Collaborators: Carlo Baldin

Status: Design completed

OUR TASK

The project involves internally refurbishing the historical building, Palazzo Flangini, as the new “Fondazione di Venezia” headquarters.

Mappa della città di Venezia con localizzazione di Palazzo Flangini

THE CONTEXT

Palazzo Flangini is in Venice, in Sestriere of Cannaregio, and the main façade overlooks the Grand Canal. The building was constructed in 1700 by the architect Giuseppe Sardi, and it is characterized by its verticality and facade asymmetry. History tells us that Flangini’s family could never acquire the other wing of the palace; therefore, the facade is so iconic. It is also enriched by single-lancet and four-lancet windows, with a big arched portal above which two male figures are carved.

  • Render della sala conferenze al primo piano con travi a vista, Fondazione Venezia

    Fondazione Venezia Aula Piano Primo Render

  • Render dell’ingresso principale con pareti in pietra, Fondazione Venezia

    Fondazione Venezia Ingresso Principale Render

THE PROJECT

The project aims to highlight the elements of Venetian architecture by using a modern language. The idea was to establish a vivid connection between different times and traditions, keeping the cultural heritage value of the building.

The project answers the main functional requests, and at the same time, it tries to avoid invasive construction interventions as much as possible. The strategy adopted investigates the use of reversible architectural solutions. A versatile mix of furniture aims to enhance the dialogue with the context.

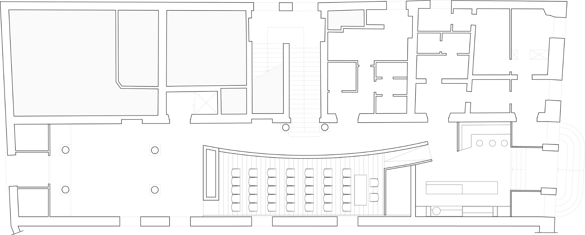
Pianta architettonica del piano terra di Palazzo Flangini, Venezia

Project plan, ground floor

Fotografia reale dell’ingresso monumentale con colonne, Palazzo Flangini

At the ground floor level, the entrance hall is enclosed by a mirror wall, which amplifies the space's perception and emphasizes the four stone columns of the atrium. The wall divides the entrance from the new conference hall, which is realized using a raised platform hosting different activities. The platform hosts the installation of movable seats that, if not necessary, can be easily removed and placed inside a storage room.

Diagramma 3D del livello terra della Fondazione Venezia, progetto Barman Architects

The platform is inscribed within a curved longitudinal wall. The shaped element dialogues with the monumental staircase, creating a view from the stairs inside the multifunctional.

  • Render della lounge al piano terra della Fondazione Venezia, progetto Barman Architects

    Fondazione Venezia Aula Piano Primo Render

  • Render della sala conferenze con arredi metallici, Fondazione Venezia

    Fondazione Venezia Ingresso Principale Render

On the first floor, furniture is arranged to design different spaces for individual and collective work.

  • Fondazione Venezia Palazzo Flangini P 1 Barman Architects

  • Fondazione Venezia Palazzo Flangini Pianta P 1 Barman Architects

  • Fondazione Venezia Palazzo Flangini Pianta PT Barman Architects

Project plan, first floor

Read more …NEW FONDAZIONE Di VENEZIA headquarters

  • Hits: 226